Содержание
Редуктор на ЭДГАН Матадор (с резьбой м28*0,8) 2, 3 версия
Редуктор вкручивается вместо родного редуктора. Но из-за меньших размеров, приходится делать дополнительную проставку с резьбами, которая передвигает редуктор к дыхательному отверстию резервуара.
Заредукторный объем при этом увеличится примерно на 8 кубов. Можно эту проставку делать цельную, только с каналом для прохода воздуха. Тогда все объемы остануться как в оригинале. Так же можно сделать съемный заполнитель этого объема
Ниже на фото с родной эдгановской проставкой.
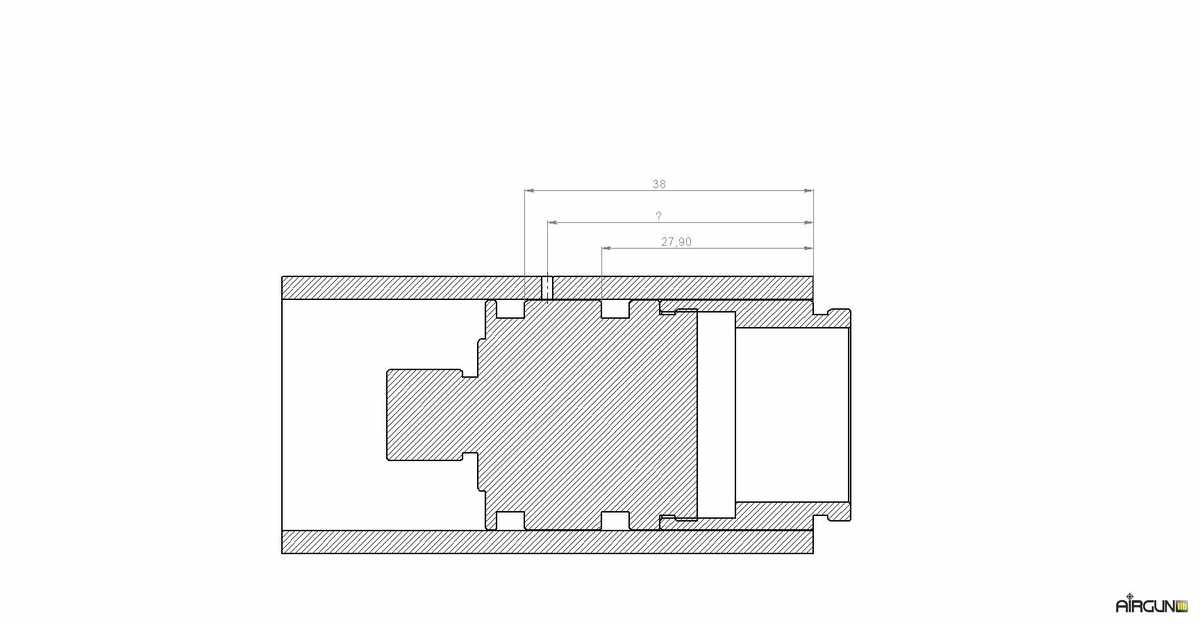
Набрал некоторую статистику, обычно дыхательное отверстие в резервуаре просверлено на расстоянии 32-34мм от стыка редуктор/заредукторный объем. (размер Х1 на эскизе)
И я делаю «стандартный вариант» чтобы оно перекрывалось для этих размеров. Если у вас по другому — пишите об этом в заказе.
Вот так выглядит мой вариант редуктора с проставкой в разрезе.
ps резервуар показан «обрезанным» по месту стыка редуктор/заредукторное. На самом деле он длинный до бесконечности
диапазон 150-180 (+100р)
Для заказа нужно указать:
Состав ЗИП:
- 004-006-14 2шт.
- 010-013-19 1шт.
- 025-030-30 2шт.
Вес примерный, грамм:
120






